Главная

 

Предложения

 

Контакты

 

Карта сайта

Конча-Заспа

Коттедж

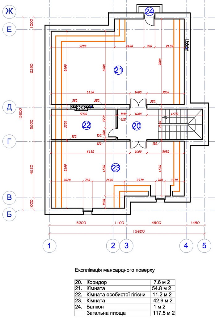
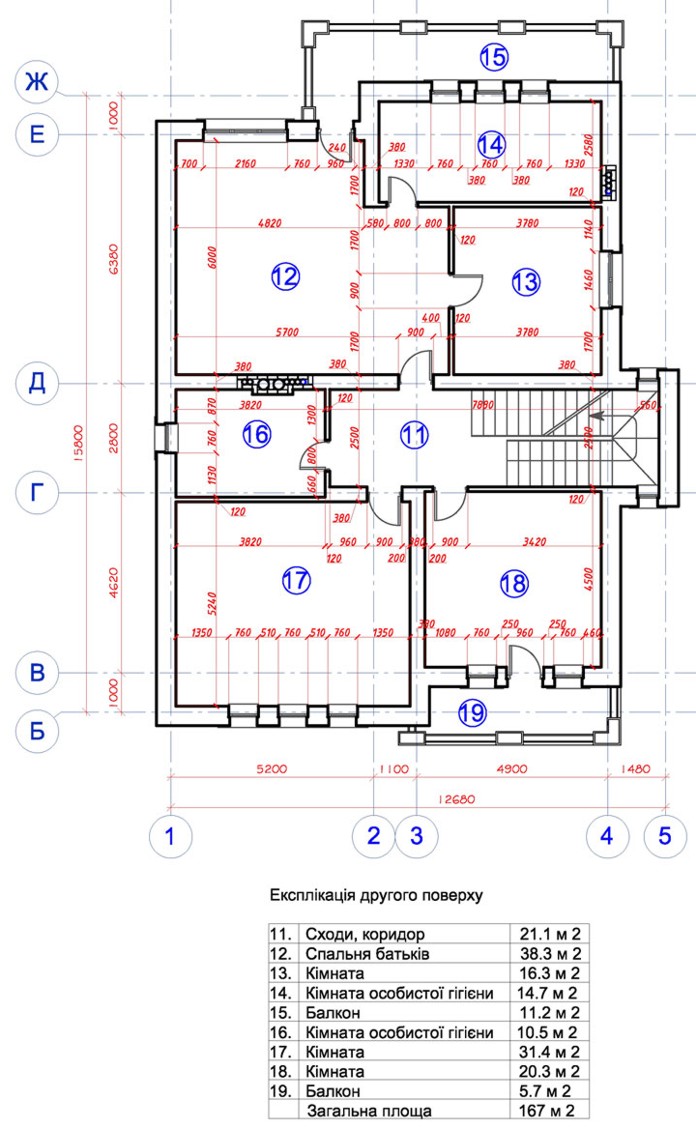
3 уровня

446 кв.м

Современный дизайн удобство эксплуатации, высокое качество, эргономичность, контроль архитектором и инженерами на всех этапах.

Трехэтажное здание без подвала. Свайное поле в основании с железобетонным поясом, гидро и теплоизоляция. Толщина несущих стен 1,5 кирпича марки М100, межкомнатных 1\2 кирпича (легкость в перепланировке) маячная штукатурка. Между этажами специальный ж\6 пояс для придания дополнительной прочности и сейсмоустойчивости. Межэтажные перекрытии - ж\б плиты Участок поднят на 0,7-1 метр. Применены специальные меры по увеличению внутреннего полезного пространства - устранение коридорной системы, благодаря применению мощных несущих балок перекрытий. Мансардные окна на 3-м этаже.

Газ, вода - скважина, центральная канализация, электроэнергия. По дому разведена канализация, вода, отопление (теплые полы), электроэнергия, вентиляционные трубы. Дома экстра класса. По окончании всех работ дом войдет в закрытый комплекс с охраной и своей инфраструктурой - магазин, автомойка, пляж с лодочной станцией, теннисные корты. Уже сейчас участок выходит на собственный канал Посажены зеленые насаждения, асфальтированный подъезд.

Дом без отделочных работ.

Площадь участка - 0,1021 га.

690 000

050-3313474  Сергей Петрович