Конча-Заспа

Коттедж

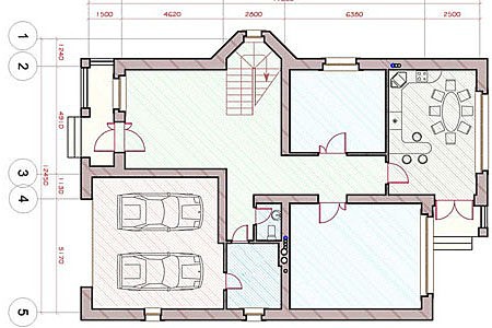
3 уровня

467 кв.м

Трехэтажное здание без подвала. Свайное поле в основании с железобетонным поясом, гидро и теплоизоляция. Толщина несущих стен 1,5 кирпича марки М100, межкомнатных 1\2 кирпича (легкость в перепланировке) маячная штукатурка. Между этажами специальный ж\б пояс для придания дополнительной прочности и сейсмоустойчивости. Межэтажные перекрытия - ж\б плиты. Участок поднят на 0,7-1 метр. Применены специальные меры по увеличению внутреннего полезного пространства - устранение коридорной системы, благодаря применению мощных несущих балок перекрытий. Мансардные окна на 3-м этаже.

Газ, вода - скважина, центральная канализация, электроэнергия. По дому разведена канализация, вода, отопление (теплые полы), электроэнергия, вентиляционные трубы.

Дома экстра класса. По окончании всех работ дом войдет в закрытый комплекс с охраной и своей инфраструктурой- магазин, автомойка, пляж с лодочной станцией, теннисные корты. Уже сейчас участок выходит на собственный канал. Посажены зеленые насаждения, асфальтированный подьезд.

Дом без отделочных работ.

Участок 0,109 га.

649 000

050-3313474  Сергей Петрович


 

 


 

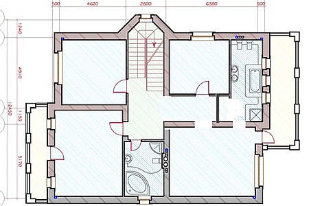
план 1 этажа

 

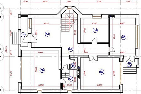
экспликация


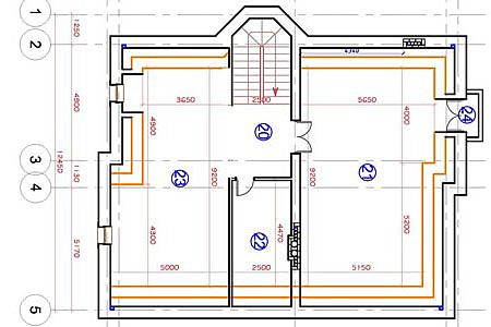
план 2 этажа

 

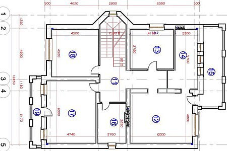
экспликация


мансарда


вид с балкона