Ресторан в Ялте

 

Действующий ресторан-кафе расположен в историческом центре г.Ялта, в 50м от моря и набережной. Здание постройки 1875г.  до 1917г. принадлежало Торговому Дому графа Мордвинова. Одно из немногих сохранившихся после землетрясения 1924г.

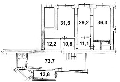
Общая площадь 553,8 кв.м.

1-й этаж -239.1 кв.м., высота потолков- 4,6- 5,05 м.

3 зала на 52 посадочных места + банкетный зал на 12 персон, 3 санузла, бар, барбекю, кондиционеры. Несколько входов, парковка. В летнее время легко оборудуется летняя площадка.

 подвальное помещение- 313,7 кв.м., высота потолков- 2,5-2,85 м. 

 

В настоящее время не задействовано. Выполнено в оригинальном старинном стиле. При небольших вложениях можно превратить в прекрасный паб или клуб.

 

 

Проведена газификация объекта, автономная отопительная и вентиляционная системы на всех уровнях. Открыта каминная система, в которой установлен барбекю. На все виды работ были получены соответствующие разрешения от контролирующих организаций. Все строительные и ремонтные работы были проведены профессиональными профильными организациями в соответствии с ГОСТами. Все торговое и технологическое оборудование находится в отличном рабочем состоянии.

2 000 000 у.е.

050-3313474  Сергей Петрович

 

план 1-го этажа